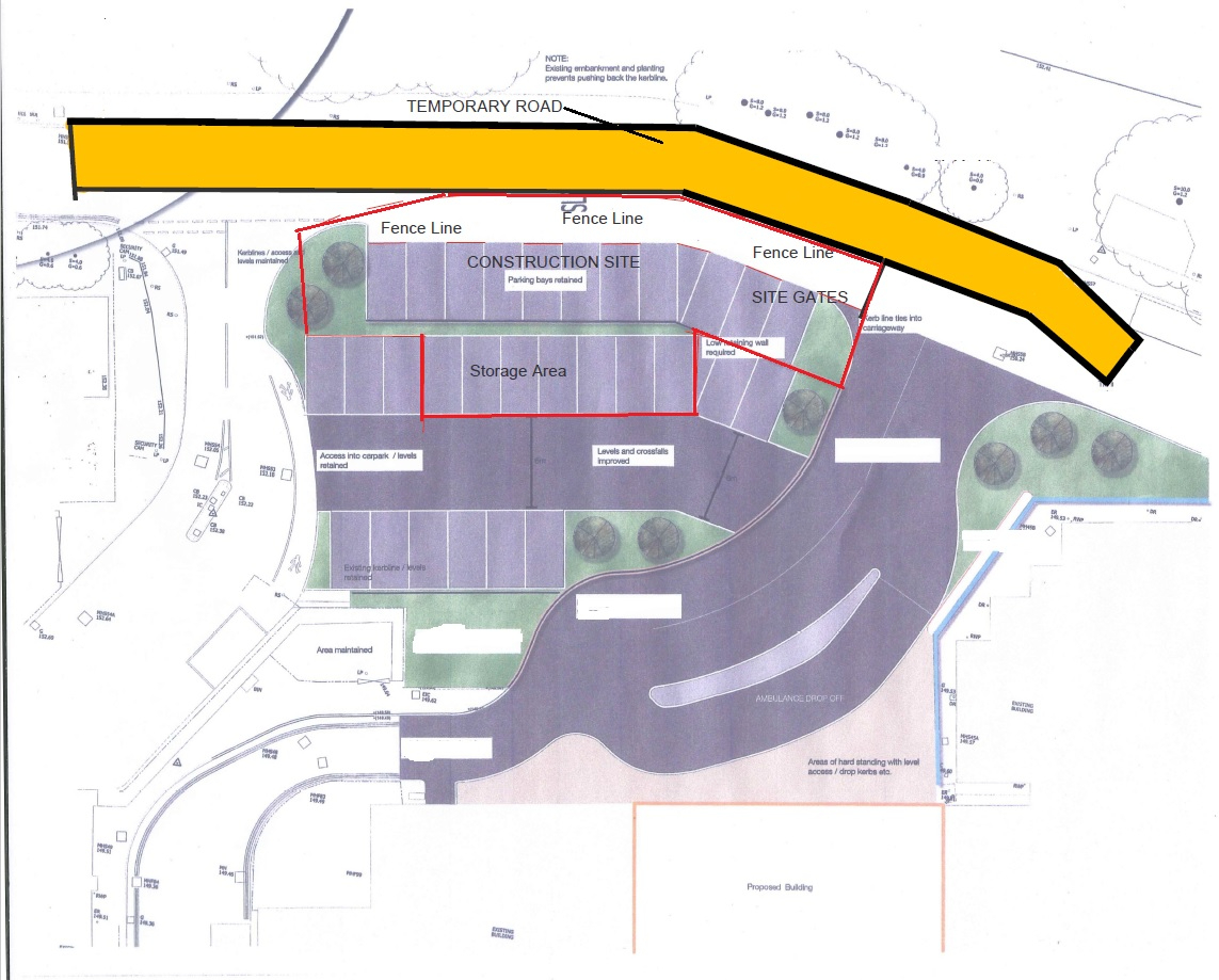
As part of the works to the new Medical Receiving Unit, contractors will be carrying out road drainage works to a section of the Emergency Department access road and adjacent car park from Monday 24th November until Friday 19th December inclusive (site location indicated on images).
During this period, areas of parking will be unavailable in this location as indicated to accommodate site set-up.
A temporary traffic route will be in place (highlighted in orange attached) to maintain through road access along the Emergency Department access road.
During the works the contractor will also have signage in place on the entry point and to divert traffic around the construction site.
Any queries or issues whilst works are taking place can be directed to Estates on 01625 661616.

Found a problem? Report it and help us to improve our website